PHOTO 鳥村鋼一(ナカサアンドパートナーズ)

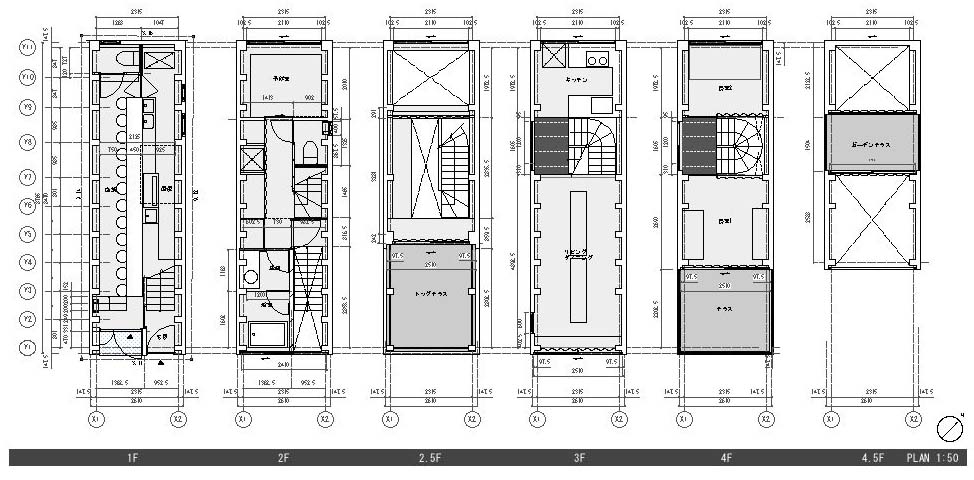
PLAN

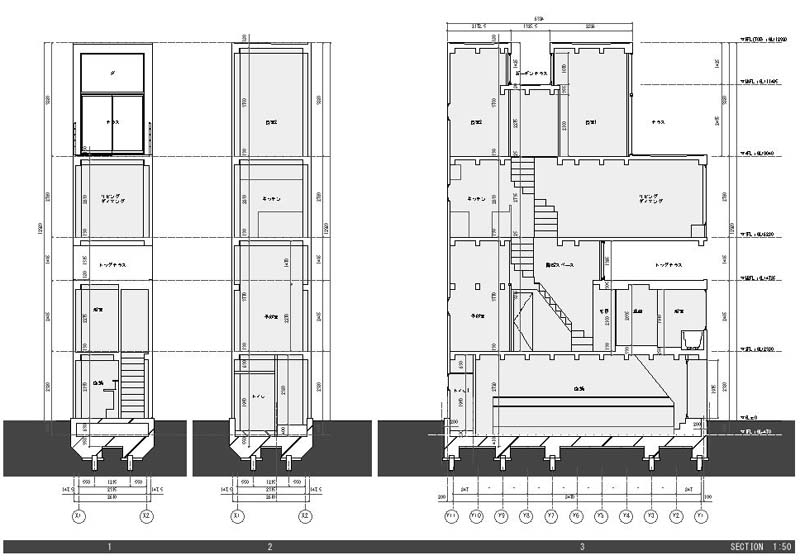
SECTION